Działka budowlana Wołczkowo gm. Dobra (Szczecińska)
Wołczkowo gm. Dobra Szczecińska Pokaż na mapie ›
Dodane: Sobota, 14 Marzec, 2026 12:52
549 000 zł
583 zł/m2
Szczegóły ogłoszenia
- Kategoria: Działki i grunty / Sprzedaż
- Pow. działki:942 m2
- Rodzaj działki:Budowlana
- Sprzedaż:Pośrednik
- Cena: 549 000 zł / 583 zł/m2
Opis oferty
BEZPŁATNIE POMAGAMY W UZYSKANIU KREDYTUPrzedmiotem oferty jest działka budowlana o powierzchni 942 m2 położona w Wołczkowie przy ul. Łanowej, gmina Dobra (Szczecińska), powiat policki, województwo zachodniopomorskie.
Nieruchomość usytuowana jest w bardzo atrakcyjnej lokalizacji, w otoczeniu nowej zabudowy jednorodzinnej. Wołczkowo to jedna z najbardziej poszukiwanych miejscowości w bezpośrednim sąsiedztwie Szczecina - oferująca szybki dojazd do miasta oraz spokojne, kameralne warunki do życia.
Dojazd do działki prawie w całości przez utwardzoną drogą, a okolica jest już w dużej części zabudowana nowymi domami jednorodzinnymi.
Pozwolenie na budowę i projekt
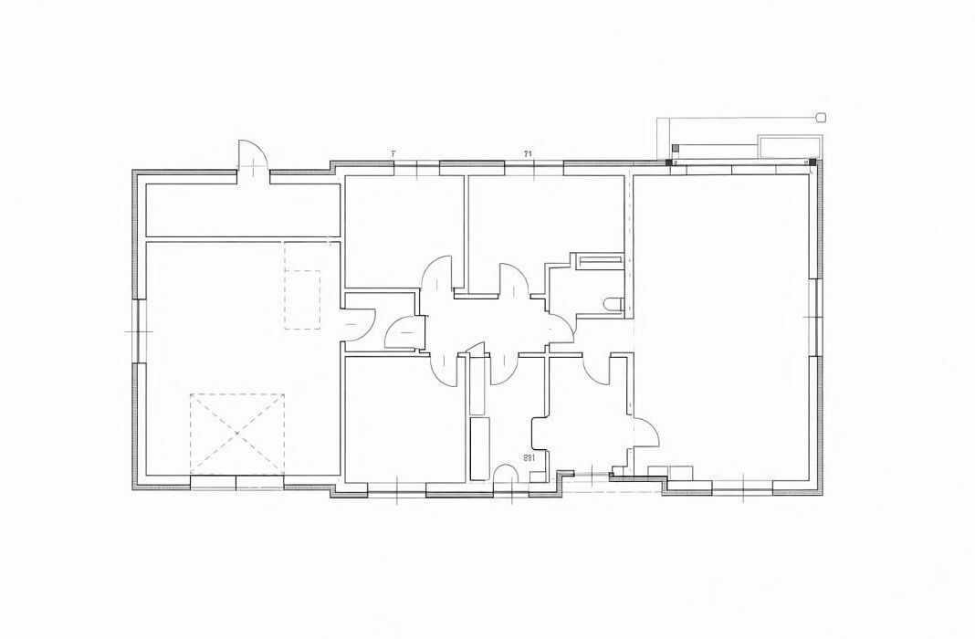
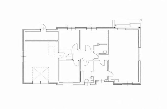
Działka sprzedawana jest z gotowym projektem budowlanym oraz wydanymi warunkami zabudowy na budowę nowoczesnego domu jednorodzinnego z garażem.
Projekt obejmuje parterowy dom o powierzchni ok. 138 m2, w którego skład wchodzą m.in.:
- przestronny salon z kuchnią
- 3 sypialnie
- 2 łazienki
- garderoba
- pomieszczenie gospodarcze
- wiatrołap
- garaż z pomieszczeniem technicznym
Projekt został indywidualnie przygotowany dla właściciela działki w oparciu o wieloletnie doświadczenie w budownictwie, dzięki czemu jest bardzo funkcjonalny i korzystny pod względem kosztów realizacji.
Istnieje możliwość modyfikacji projektu, pod warunkiem zachowania parametrów wynikających z wydanych warunków zabudowy.
Najważniejsze parametry z decyzji o warunkach zabudowy:
przeznaczenie: budynek mieszkalny jednorodzinny z garażem
- maksymalna powierzchnia zabudowy: 20%
- szerokość elewacji frontowej: 14 m - 20 m
- dach: dwu- lub wielospadowy
- kąt nachylenia dachu: 30° - 45°
- wysokość kalenicy: 6,3 m - 9,0 m
- maksymalna wysokość górnej krawędzi elewacji: 4,0 m
- minimalna powierzchnia biologicznie czynna: 50%
- minimum 2 miejsca postojowe na działce
Media:
energia elektryczna - na działce
woda - na działce
kanalizacja - na działce
gaz - na działce
Działka posiada pełne uzbrojenie, co umożliwia szybkie rozpoczęcie budowy.
Dodatkowe informacje
Projekt domu może zostać dostosowany do indywidualnych potrzeb przyszłego właściciela.
Nieruchomość stanowi doskonałą propozycję dla osób planujących budowę nowoczesnego domu w jednej z najlepszych lokalizacji pod Szczecinem, z gotową dokumentacją znacząco skracającą czas rozpoczęcia inwestycji.
Zapraszam na prezentację
Krawiec Nieruchomości
SKUPUJEMY NIERUCHOMOŚCI ZA GOTÓWKĘ
Treść niniejszego ogłoszenia nie stanowi oferty handlowej w rozumieniu Kodeksu Cywilnego. Treść ma charakter informacyjny i zalecamy ich osobistą weryfikację. Kontaktując się z biurem Klient wyraża zgodę na przetwarzanie danych osobowych zgodnie z przepisami ustawy z dnia 29 sierpnia 1997 roku o ochronie danych osobowych / Dz.U.Nr. 133 poz. 883/. Klientowi przysługuje prawo do wglądu do swoich danych osobowych i ich aktualizacji.
:: Oferta wysłana z programu mediaRent (media-rent.eu) ::
Numer oferty: 74/KWC/DZS

Krawiec Nieruchomości
Konto firmowe
Na Lento.pl od 01 lut 2021
Strona użytkownika
- Wypromuj ogłoszenie
- Zgłoś naruszenie
- Drukuj ulotkę
- Edytuj/usuń ogłoszenie
- Udostępnij ogłoszenie
- Dodaj na Facebook

















